MokuSeed(モクシード)

- モクシード -

コンテナではできなかった
を叶える新しい選択肢

「移動」させることでリユースできる
新たな木造ソリューション

自由に使う

カスタマイズの幅が広く、用途に応じてお楽しみください。

移動 / リセール

不要になった際は、移動させて活用や、リセールが可能です。

生まれ変わる

新たなオーナーが、自由に活用。生まれ変わります。

INFORMATION*販売店用

サイズ違いのラインナップ

サイズ(外寸)
W:3,793 D:1,973 H:2,400
重さ 約1,000kg

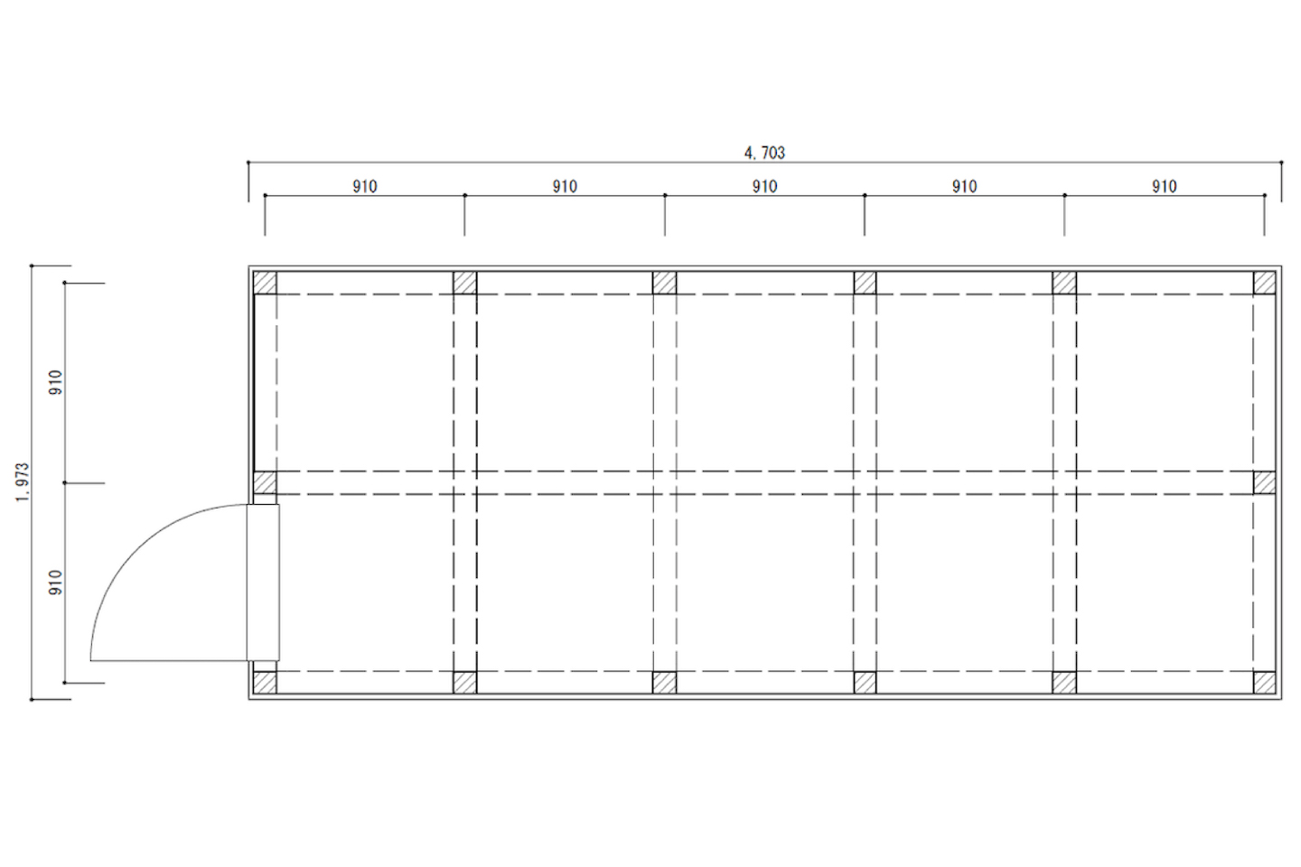
サイズ(外寸)
W:4,703 D:1,973 H:2,400
重さ 約1,300kg

サイズ(外寸)
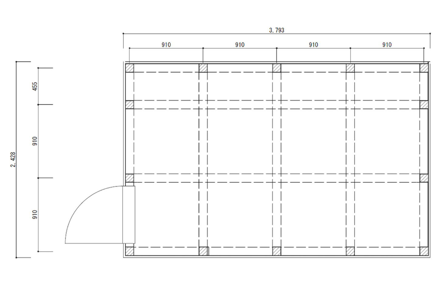
W:3,793 D:2,428 H:2,400
重さ 約1,300kg

使い方はいろいろ

暖かみのあるのMokuSeedは、あなたのライフスタイルに合わせて自由自在。
趣味の空間、仕事場、収納スペース、ゲストルーム、小さなお店、書斎などなど、アイデア次第で可能性は無限大に広がります。

COMPARISON

スタンダードタイプ
ロングタイプ
ワイドタイプ
用途・特徴
コンパクトなサイズで、簡易的な休憩所やガレージとしての利用に最適
個人用オフィスやワークスペース、趣味の空間として利用できる汎用的な中間サイズ
小規模の店舗、作業場、お子様の個室としても利用できる最大サイズ
型式
MKS-001
MKS-002
MKS-003
サイズ(外寸)
W:3,793
D:1,973
H:2,400
W:4,703
D:1,973
H:2,400
W:3,793
D:2,428
H:2,400
重量
約1,000kg
約1,300kg
約1,300kg
標準設備
  • 構造体:杉柱(105角)
  • 外壁:金属サイディング(ケイミュー)
  • 内壁、天井:パーティクルボード(9mm)
  • 床材:構造用合板(ラーチ合板)+床断熱材(ダンマット)
  • 勝手口ドア(全面ガラス)(LIXIL)1ヵ所

OPTION

エアコン

引き違い窓

上げ下げ窓

シャッター

庇(ひさし)

照明

コンセント

断熱材

壁紙

床材

DEALER

お近くのディーラーを探す